Ristrutturazione Montecatini Terme centro
monolit • 5,2 m² • €4030
Abbiamo realizzato una ristrutturazione bagno a Montecatini Terme in centro chiavi in mano partendo da zero, con l’obiettivo di ottenere uno spazio m…
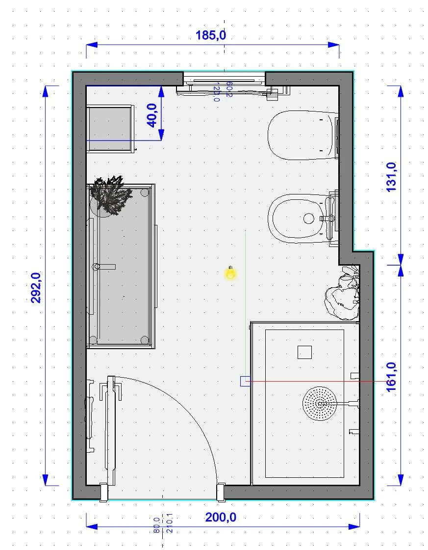
Apri il progettoRistrutturazione bagno Empoli chiavi in mano a 5790€. Rifacimento completo con doccia 120x90 e progetto gratuito. Calcola il prezzo online in 2 minuti...
Soft • 7,6 m² • €5790
Se cerchi una ristrutturazione bagno a Empoli chiavi in mano, in questo progetto ti mostriamo come abbiamo trasformato un ambiente datato. La domanda più comune è sempre quanto costa ristrutturare un bagno e come ottimizzare lo spazio. All’inizio abbiamo realizzato gratuitamente un progetto bagno completo, così il cliente ha potuto vedere subito il risultato finale e confermare l’inizio dei lavori. Il progetto è visibile nelle foto di questo intervento.
Abbiamo anche proposto la possibilità di ottenere lo sconto del 50% tramite detrazione fiscale, ma il cliente ha deciso di non utilizzarlo. Dopo l’approvazione del progetto siamo partiti con i lavori, iniziando dallo smantellamento completo dei vecchi sanitari e della vasca che occupava tutto lo spazio. Questo ci ha permesso di aumentare la superficie utile, migliorare la luminosità e creare un ambiente moderno e funzionale.
Al posto della vasca abbiamo installato un piatto doccia 120×90 con box in vetro trasparente. Le pareti sono state realizzate con una combinazione di pittura e piastrelle bagno 60x120 nelle zone umide. Abbiamo rifatto completamente l’impianto idraulico, rimosso il vecchio radiatore e predisposto il termoarredo. Inoltre, sono state aggiunte nuove linee elettriche per lavatrice e asciugatrice, rendendo lo spazio pratico e organizzato per l’uso quotidiano.
Il costo ristrutturazione bagno a Empoli è stato di 5790€ per manodopera e materiali edili. Mobili e sanitari sono stati scelti direttamente dal cliente. Se vuoi sapere quanto costa rifare il bagno a casa tua, fai un preventivo online in soli 2 minuti sul nostro sito. Seguici anche su Instagram per vedere i nostri lavori reali.
Stessa qualità, altri casi pubblicati con foto, dettagli e una lettura compatta come sul sito.
monolit • 5,2 m² • €4030
Abbiamo realizzato una ristrutturazione bagno a Montecatini Terme in centro chiavi in mano partendo da zero, con l’obiettivo di ottenere uno spazio m…
Apri il progetto
monolit • 6,7 m² • €6800
Ristrutturazione bagno a Montecatini Terme chiavi in mano realizzata da zero secondo un progetto personalizzato. L’immobile era privo di finiture, qu…
Apri il progetto
combo • 5,2 m² • €5490
Ristrutturazione bagno a Montecatini chiavi in mano con rifacimento completo delle strutture e degli impianti. L’obiettivo principale era eliminare i…
Apri il progettoIl progetto porta prova sociale, le pagine servizio portano domanda commerciale.